Initial Troubleshooting Pinball Machines

A. Caution
B. Solid State Troubleshooting
    1) Early Bally / Stern
        – Voltages Required
        – Solenoids
    2) WPC Bally / Williams
    3) Williams 11
    4) Williams 3 – 7
    5) DE – Sega – Stern
        – DE / Sega V3 & 3B
        – Sega / Stern Whitestar
C. EM‘s

This is where most ‘newbies’ mess up.  They hear ‘replace the board’, ‘redo the connectors’, ‘rebuild the power supply’, etc.  These are all good strategies, when there is a reason to.  But don’t do this until you have an idea of what is wrong.  

Jumping in and replacing / fixing stuff without testing first is just being stupid. Don’t fall into this trap.  Do these test first!

Prior to proceeding, please read and understand our Caution section.  Note that pinball machines contain high voltages and can kill.  Do not proceed unless you are qualified.

The following information cannot cover everything.  There are other sections on this site that covers many of those.  This is for ‘nothing works and what do I do?’

Troubleshooting SS (Solid State) Pinball Machines

Gorgar Power Sys 6
Williams Power Supply.

On all solid state machines, there are two important steps when (almost) nothing works:

1) Unplug as many boards as possible.  Troubleshooting when things are wrong can cause more expensive and hard to repair problems.  We will cover this later.
2) Check the fuses and measure your voltages.  Checking the fuses is covered under that link.  What we cover here is how to check the voltages.

On essentially all pinball machines, the (120, 230, 100, or?)  VAC comes in from the wall plug, into a transformer and out to the power supply.  Some games have two sections of power supplies: rectifiers (convert AC to DC) and voltage regulators.  Other games combine those two sections into one.  Sometimes the power supply is part of the solenoid control board two.  Still others have multiple power supplies.  

All of the following assumes you have basic tools including a voltmeter (DVM) and know how to safely use it.  And understand basic circuit diagrams.  If you don’t, you should not be doing this.

Tools Required

*  A reasonably good voltmeter (DVM) with good test leads.
* Screwdrivers.  Phillips and slot.
* A manual for the pinball machine that includes a circuit diagram.

Sometimes Needed Tool

clip leads* Allen Wrenches.
* Nut Drivers.  Usually English.
* Needle Nosed Pliers.
* Wire cutters / stripper.
* Crimper and supplies.
* A good set of test leads that can clip onto a wire.

Early Bally and Stern Pinball Troubleshooting

Bally backbox power
Early Bally Backbox and Circuit Boards

This covers Bally pinball machines known by the shorthand -17 which were made from 1976 – 1979, -35 which were manufactured from 1979 – 1985, and the few -133 Bally games.  Also covered were early Stern SS pinball machines known as M-100 and M-200

How to troubleshoot early Bally and Stern Pinball Machines.  Steps include checking all the voltages and troubleshooting problems with the solenoids.

Bally / Williams WPC Pinball Troubleshooting

Circuit boards in WPC backbox
WPC89 Backbox

This covers WPC pins manufactured by Williams under both the Williams and Bally brand.  Manufactured from 1990 – 1998, the end of the Williams and Bally pinball era.  This covers all types of WPC pins, including alpha numeric, DMD and WPC95.

How to troubleshoot Williams / Bally WPC pinball machines.

Early Williams System 3 – 7 Pinball Troubleshooting

Power to the MPU board
Williams System 3 – 6 Backbox

This covers early Williams pinball machines System 3, 4, 6, 6A and 7.

How to troubleshoot early Williams System 3 – 7 pinball machines.

Williams System 9 & 11 Pinball Troubleshooting

Williams Sys11B backbox
Sys 11B and 11C

This covers Williams pinball machines 9, 11, 11A, 11B and 11C

How to troubleshoot Williams system 9 and 11 pinball machines.

Electro Mechanical Pinball Troubleshooting

williams 1957 baseball backbox mechanismsEM pinball machines are an entire category all to themselves.  No circuit boards with ICs, resistors, or transistors.  Only relays, wheels, solenoids, lamps, etc.

Find out how to start troubleshooting your EM pinball machine.

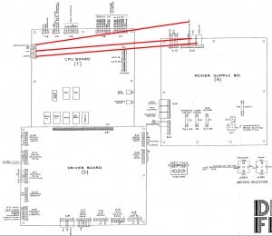
Data East and Sega System 1, 2, 3 / 3B Pinball Troubleshooting

DE System 3 Layout
DE WWF Royal Rumble

Data East and Sega made some great pinball machines in the early to mid-1990’s.   The circuits are similar to those used in Williams System 11, which can make them familiar to those used to troubleshooting those pinball machines.

How to troubleshoot Data East / Sega System 3 and 3B pinball machines.

Comments

Comments, including suggestions, improvements, errors, etc. are welcome (see below).

If you have a specific question about your game that does not directly apply to this section, please see our FAQ section.